大東通商 市谷砂土原レジデンス Concept 「市ヶ谷」駅から橋を渡り外堀通りを右手へ、浄瑠璃坂を上った丘の上、風合いを感じる大谷石や御影石で設えたエントランス、やわらかな表情を演出するスクラッチタイルの外壁、窓の上下には輝きのある御影石を配し、重厚感とやわらかさを併せ持つ外観

市谷砂土原レジデンス

東京メトロ有楽町線、南北線、都営新宿線「市ヶ谷」駅 徒歩4分

5路線利用の
快適アクセス

地上6階、総戸数29戸

2025.06.13 公開

LOCATION ロケーション

自然の景観にも恵まれた
由緒あるエリア

「市ヶ谷」駅
「市ヶ谷」駅

市谷砂土原レジデンスは新宿区市谷砂土原町1丁目に位置するマンションです。東京メトロ南北線、有楽町線、都営新宿線「市ヶ谷」駅まで徒歩4分、JR総武・中央緩行線「市ヶ谷」駅まで徒歩8分で、多くの路線を活用できるメリットがあります。

浄瑠璃坂
浄瑠璃坂

さまざまな商業施設が立ち並ぶ牛込中央通りから少し中に入り、浄瑠璃坂の高台に市谷砂土原レジデンスがあります。市谷砂土原はかつて武家屋敷が建ち並んでいたという歴史があり、その面影を残す閑静な邸宅地となっています。また、江戸時代の古地図に見られる道筋や寺社、町名などが残されており、浄瑠璃坂もそのひとつとされています。

法政大学市ヶ谷キャンパス
法政大学市ヶ谷キャンパス

「市ヶ谷」駅前にも多くのお店が並んでおり、春になると外堀通りには桜が咲き誇るなど、買い物のしやすさや自然の景観も魅力です。近隣には法政大学などの有名な学術機関が多くあり、活気あるエリアです。歴史と未来という2つの顔をもつ都心居住地は、住環境としての利便性と静けさを兼ね備えたエリアです。

FEATURES 建物の特徴

細部までこだわった
気品にあふれるファサード

市谷砂土原レジデンス アプローチ
市谷砂土原レジデンス アプローチ

周囲の静かな環境に合わせた外観は、自然の時が作り上げた素材を効果的に配置することにより緻密なデザインが完成しています。

コンセプト・デザイン

市谷砂土原レジデンス 敷地配置図
市谷砂土原レジデンス 敷地配置図

市谷砂土原レジデンスは2004年11月に竣工した地上6階地下1階建てのマンションで、総戸数は29戸です。

市谷砂土原レジデンス 外観
市谷砂土原レジデンス 外観

レーモンド設計事務所と鹿島建設の連携により、巨匠として知られるアントニン・レーモンドの邸宅思想をベースに、景観に配慮しつつ品格を意識した設計となっています。閑静な街並みに調和するよう、外観には自然石を多用。敷地の外周部には大谷石を取り入れ、素材の風合いを引き出しています。さらに、外壁には二丁掛スクラッチタイルを採用し、レトロでありながら重厚感のある佇まいを演出。落ち着いた印象を与えるデザインに仕上げています。さらに、窓の上下には御影石を使い風格を表すなど、緻密なデザインによって独特なファサードを形成。落ち着いた外観は街並みに調和しています。

市谷砂土原レジデンス エントランス
市谷砂土原レジデンス エントランス

エントランスまわりは御影石と大理石を貼り分けることにより、重厚さと気品の調和に配慮した設計。送迎用の大型車が2台利用できる、広いスペースが用意されています。

建物構造

安定した地盤と杭基礎

地盤の強度を示す「N値50以上」程度の堅さをもつ支持層が、マンション周辺に分布しています。表面から約26m以深にある支持層まで、27本のコンクリート杭を打ち込んでいます。安定した支持層に多くの杭を打ち込むことで、建物をしっかり支えます。

二重床構造

LL-45等級の遮音性能を有した二重床構造になっています。フローリングの下層にはグラスウールが充填されるなど、音を伝わりにくくするための配慮がされています。

ペアガラス

乾燥した空気層を2枚のガラスで挟むペアガラスを採用。断熱性に優れるとともに、外部から見えにくいようにするためにブロンズ色としています。

セキュリティ

セコム・マンションシステム

有人管理によって監視するとともに、24時間体制で稼働するセコム・マンションシステムを採用しています。火災やガス漏れ、さらに侵入者などを即座に感知、セコムコントロールセンターへ通知される仕組みです。通報を受けたセンターでは異常について分析し、状況に応じて速やかに対応します。

カラーモニター付住戸情報盤

来訪者をカラー映像と音声で確認し、オートロックを解錠できるシステムです。また、火災やガス漏れ、警報や非常通報を知らせます。一部住戸のマスターベッドルームには、増設親機を設置しています。

防犯センサー

1階から6階まですべての住戸の開閉窓、ドアといった開口部に設置されています。

防犯カメラ

防犯カメラ

※画像はイメージです。

風除室、メールコーナー、地下駐車場・地下自転車置場の出入り口、エレベーター内といった主要な場所に防犯カメラを14台設置。さまざまな角度から監視し、不審者の侵入を抑制します。

ノンタッチキー

エントランスに採用、キーホルダーを近づけるだけで解錠できるので、荷物が多い方でも手軽に入れます。

HORIのトライデントシリンダーキー

キーのバリエーションは1,400万通りにもなり、ピッキングによる不正解錠を防止します。

COMMON AREA 共用部

トランクルームは
ワインセラーの設置も可能

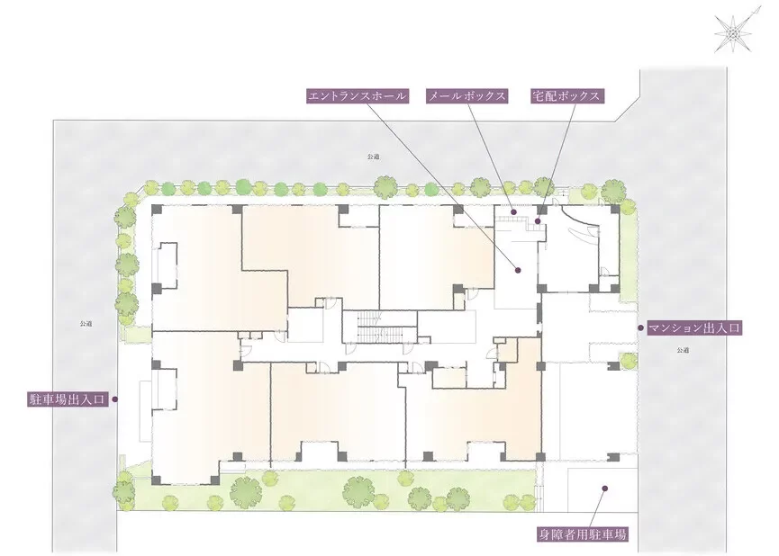
共用施設

エントランスホール

フロアは大判の大理石が使われており、大胆ながら高級感が漂う空間を創出しています。さらに、扉にはローズウッドを使用し、折上天井からは間接照明の光が広がり、伸びやかでしっとりした空間が演出されます。時の流れがゆったりするかのようなデザイニングが施されています。

内廊下

外部からの視線が届かない内廊下により、各邸宅へ向かうことができます。廊下にはタイルカーペットが敷かれており、ホテルのような洗練されたデザインが採用されています。壁はスタッコ調塗り壁を使っており、マットな質感を醸し出しています。1階のライトコートは石とタイルが敷き詰められており、より個性的で洗練された空間が広がります。

地下駐車場

駐車場を地下に設けることによって安全性が高まるほか、利用時の利便性にも配慮した設計です。出入り口には乗車しながらリモコンで操作できる電動シャッターを用意しており、外部からの侵入を防ぎます。

トランクルーム

全戸分のトランクルームを完備しています。季節外のものやかさばるものなどを置いておくことで、住戸内の空間効率を高めています。ルーム内は空調も完備されています。さらに、ワインセラーを設置できるトランクルームもあります。

宅配ボックス

エントランスのメールコーナーに設置されており、不在時でも宅配便の発送や受取が可能です。大きな荷物にも対応しており、取り出しは24時間いつでもできます。外出が多い方や帰りが遅い方でも、24時間対応で利便性が高くなっています。

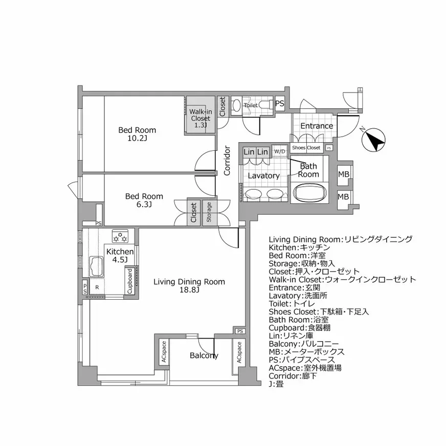
FLOOR PLAN 間取り図一例

充分な収納力を発揮する
ストレージ

市谷砂土原レジデンス 間取り図例
市谷砂土原レジデンス 間取り図例
市谷砂土原レジデンス 間取り図例
市谷砂土原レジデンス 間取り図例

INSIDE THE ROOM 室内

ハンドルの意匠にまで
こだわった
品質の追求

玄関扉のハンドルには堀商店のものを採用しているほか、水栓やドラム式洗濯乾燥機に海外製のものを使用するなど、品質とデザイン性の高さを追求しています。

室内仕様

エントランス

玄関扉のハンドルは、1世紀以上の歴史をもつ堀商店のものを採用しています。個性的かつ高品位なフォルムが光るアートのようなハンドルで、高品質な設計部材が採用されています。ダブルロックになっており、防犯性も高くなっています。
床は光沢を湛えた大理石を敷き詰めており、折上天井と合わせて開放感を覚えます。
玄関サイドにはシューズインクロークを置いています。ゴルフバックのようにかさばるものもしまえるほど、高い収納力を発揮しています。

リビング・ダイニングルーム

ゆとりある空間構成となっています。フローリングの床は落ち着いた色合いで統一されています。ライフシーンの中心となる場で居住者がゆったりと落ち着けるよう、余裕のある空間を構成。また、天井カセットタイプのエアコンを装備しています。

ベッドルーム

大きな窓からたっぷりと光が差し込みます。くつろぎを感じさせるプライベートな空間は、読書をしたりと落ち着いた空間設計がなされています。

キッチン

※画像はイメージです。

天板やバックパネルには御影石を採用。落ち着いたデザインとメンテナンス性を備えています。さらに、一部住戸に付いているガラスブロックからはやわらかい光が差し込み、拡散性のある自然光が室内に届く構造です。ワイドシンクやカップボードが採用されており、調理のしやすさや収納力もすぐれています。

※画像はイメージです。

床はTES床暖房を標準装備したフローリング、快適性に配慮された設計です。

また、キッチンには次のような機能も備わっています。

  • 食器洗浄機
  • マントルピース型大型レンジフード
  • ハンドシャワー水栓(ドイツ・ハンス・グローエ社製)
  • ビルトイン浄水器
  • 吊り戸棚

バスルーム・ドレッシングルーム

ツーボウルの洗面化粧台が使われており、朝の準備もスムーズに。床は400角タイル貼りをほどこし、ゆとりのある設計としています。さらに浴室と洗面化粧室の間には強化ガラスドアを設置しており、仕切りがありながら一体感を覚える工夫がなされています。浴槽は人造大理石で仕上げた大型のサイズで、体をゆったり休められます。

バスルーム・ドレッシングルームには、次のような機能も備わっています。

  • ドラム式洗濯乾燥機(ドイツ、AEG社製)
  • フルオートバス
  • マッサージ機能付大型シャワーヘッド(ドイツ、ハンス・グローエ社製)
  • TES浴室暖房乾燥機
  • バスコール

ストレージ

※画像はイメージです。

住戸内には、次のような収納スペースが整備されています。

  • シューズボックス
  • 壁面クローゼット
  • ウォークインクローゼット(マスターベッドルーム)
  • ウォークインクローゼット(ベッドルーム)

ACCESS アクセス

ターミナルの「市ヶ谷」駅が
最寄りとなる好立地

鉄道

「市ヶ谷」駅
「市ヶ谷」駅

最寄り駅は東京メトロ有楽町線、南北線、都営新宿線が走る「市ヶ谷」駅で、徒歩4分の距離にあります。さらに、JR中央・総武緩行線「市ヶ谷」駅へも徒歩8分と近く、複数の路線を利用して各都市へスムーズにアクセス可能です。
複数の路線が利用できる利便性に加え、行き先に応じた最適な移動手段を選べる柔軟性も魅力。 通勤や通学はもちろん、買い物やレジャーなど、さまざまなシーンで快適な移動が叶います。こちらでは、最寄りの「市ヶ谷」駅から、主要エリアへの所要時間を紹介いたします。

掲載の所要分数は日中平常時のもので、乗り換え・待ち時間等は含みません。
また時間帯により異なる場合があります。

「新宿」駅

「新宿」駅
「新宿」駅

都営新宿線「市ヶ谷」駅から、「新宿」駅まで直通で約6分です。

「渋谷」駅

「渋谷」駅
「渋谷」駅

JR中央・総武緩行線「市ヶ谷」駅から、「代々木」駅でJR山手線に乗り換えます。「渋谷」駅まで約13分です。

「六本木」駅

「六本木」駅
「六本木」駅

都営新宿線「市ヶ谷」駅から、「新宿」駅で都営大江戸線に乗り換えます。「六本木」駅まで約15分です。

「銀座」駅

「銀座」駅
「銀座」駅

JR中央・総武緩行線「市ヶ谷」駅から、「四ツ谷」駅で東京メトロ丸ノ内線に乗り換えます。「銀座」駅まで約10分です。

タクシー

タクシー

※画像はイメージです。

行き先 所要時間
「新宿」駅 約14分
「渋谷」駅 約22分
「六本木」駅 約18分
「銀座」駅 約18分

所要時間は道路事情により、実際と異なる場合があります。

バス

バス

※画像はイメージです。

マンション近くの牛込中央通りに、都バス「市谷田町」バス停があります。「新橋」駅や「新大久保」駅、「永田町」バス停などに止まるルートになっており、近隣する主要なエリアへスムーズに移動できます。

空港

空港

※画像はイメージです。

市谷砂土原レジデンスは、国内外を問わずアクセス良好なことが魅力です。最寄り駅である「市ヶ谷」駅やマンションからの移動ルートを紹介します。

羽田空港へのルート

①電車

JR中央総武線「市ヶ谷」駅から、「秋葉原」駅でJR京浜東北線・根岸線快速に乗り換えます。さらに「浜松町」駅で東京モノレール空港快速に乗り換えます。所要時間は約33分です。

②タクシー

所要時間は約35分です。

成田空港へのルート

①電車

都営新宿線「市ヶ谷」駅から「馬喰横山」駅で下車、「東日本橋」駅に向かい都営浅草線エアポート快特に乗り換えます。所要時間は約70分です。

②タクシー

所要時間は約65分です。

③リムジンバス

市谷砂土原レジデンスからタクシー等車を利用して約12分のところにある「東京ガーデンテラス紀尾井町」から、成田空港行きのリムジンバスが利用できます。所要時間は約114分です。

新幹線発着駅

「東京」駅へのアクセス

JR中央総武線「市ヶ谷」駅から、「御茶ノ水」駅でJR中央線快速に乗り換えます。所要時間は約11分です。
タクシーなどを使った車移動の場合は、約18分です。

「品川」駅へのアクセス

JR中央総武線「市ヶ谷」駅から、「代々木」駅でJR山手線に乗り換えます。所要時間は約26分です。
タクシーなどを使った車移動の場合は、約31分です。

LIFE
INFORMATION 周辺の施設・店舗情報

牛込柳町方面の施設も
使いやすいエリア

マンション近くの牛込中央通りや「市ヶ谷」駅で買い物できるのはもちろん、西側の都営大江戸線「牛込柳町」駅方面にも出かけやすいエリアです。

商業施設、商店街

ライフ市谷薬王寺店(徒歩13分/約1,000m)

ライフ市谷薬王寺店
ライフ市谷薬王寺店

銀杏坂のひとつ隣の道沿いにあるスーパーマーケットです。

くすりの福太郎市ヶ谷店(徒歩8分/約600m)

くすりの福太郎市ヶ谷店
くすりの福太郎市ヶ谷店

「市ヶ谷」駅の近くにあるドラッグストアです。お帰りの際などに立ち寄りやすく、気軽にお買い物ができます。

ファミリーマート 新宿市谷見附店(徒歩7分/約550m)

ファミリーマート 新宿市谷見附店
ファミリーマート 新宿市谷見附店

「市ヶ谷」駅の近くにあるコンビニエンスストアです。行き帰りでお買い物がしやすい立地です。

自然、公園

加賀公園(徒歩12分/約900m)

加賀公園
加賀公園

市谷の杜 本と活字館に近接する公園で、子どもたちが大好きな石の山や動物の遊戯施設などがそろっています。

暮らし、インフラ

保健会館クリニック(徒歩5分/約350m)

保健会館クリニック
保健会館クリニック

公益財団法人東京都予防医学協会によるクリニックで、さまざまな診療科目が用意されています。

幼稚園、保育園、学校

新宿区立長延保育園(徒歩5分/約350m)

新宿区立長延保育園
新宿区立長延保育園

新宿区立愛日小学校(徒歩7分/約500m)

新宿区立愛日小学校
新宿区立愛日小学校

新宿区立牛込第三中学校(徒歩7分/約550m)

新宿区立牛込第三中学校
新宿区立牛込第三中学校

まとめ

ホテルライクな暮らしが
可能な
品位あるマンション

市谷砂土原レジデンスは「市ヶ谷」駅から橋を渡り外堀通りを右手へ行き、浄瑠璃坂を上った高台に位置しています。かつては武家屋敷などが建ち並んでいたという由緒あるエリアであり、静かな環境が確保されています。

アントニン・レーモンドの邸宅思想を受け継ぎ、周囲の環境に配慮しながらも品格を表現したファサードに仕上がっています。敷地の外周部や外壁に使われるタイルなどにもこだわり、独特な質感を発揮。風格を感じさせる、重厚で気品のある佇まいを見せています。エントランスは送迎用の大型車が2台利用できるだけのスペースを確保するなど、居住者の快適性を考慮しています。

エントランスホールや内廊下はホテルライクな作りに仕上げ、居室内も開放的で趣きのあるデザインとしています。ウォークインクローゼットなど、十分な収納スペースが用意されるだけでなく、共用部にはトランクルームも設置されているので、居室空間を存分に広く使うことができます。

自然の景観も美しい市ヶ谷エリアは、将来を見据えた都会的な暮らしを可能にするでしょう。

市谷砂土原レジデンス

駅徒歩 不動産の表示に関する公正競争規約の改正(2022年9月1日)により、交通利便情報が販売中のものと異なる場合がございます。

総武・中央緩行線
「市ケ谷」駅 徒歩4分

築年月

2004年11月

総戸数

29戸

階数

地上6階 地下1階