グローバルエンタープライズ エクサージュ海岸 Concept 海岸通りからなぎさ通りをレインボーブリッジ方向に曲がった一歩奥、10階までの基壇部とそれ以上の高層階とのデザインを変えた伸びやかなタワー、高層階にはレインボーブリッジ、お台場、富士山を一望できるパノラマビューが広がる

エクサージュ海岸

「田町」駅 徒歩15分「芝浦ふ頭」駅 徒歩4分

全住戸真南向き角住戸・天井高約2.5m

地上20階、総戸数56戸

2025.04.25 公開

LOCATION ロケーション

ベイエリアを縦横に使い
こなせる
「港区海岸」

エクサージュ海岸は、銀座や品川といった都心の中心と呼べるエリアが周辺に広がる、港区海岸にあります。レインボーブリッジが間近にあり、その先にはお台場も望めます。ベイエリアを縦横に使いこなせる絶好のロケーションのエクサージュ海岸で、都心生活を満喫できるはずです。

レインボーブリッジ
レインボーブリッジ
お台場
お台場

港区海岸3丁目にあるエクサージュ海岸の最寄りの駅は、「芝浦ふ頭」駅となります。
また、「田町」駅も徒歩圏で、JRの利用にも便利。忙しいエグゼクティブのビジネスタイムをサポートしてくれます。

また、「田町」駅周辺は、msb Tamachiや芝浦商店会などショッピングも快適です。

msb Tamachi
msb Tamachi
芝浦商店会
芝浦商店会

FEATURES 建物の特徴

基壇部と高層階の
デザインを変え
伸びやかなタワーを
イメージ

コンセプト・デザイン

エクサージュ海岸 外観
エクサージュ海岸 外観

エクサージュ海岸は、2002年3月に竣工した、総戸数56戸、地上20階・地下1階のRC構造によるタワーマンションです。10階までの基壇部と高層階とのデザインを変えることで、伸びやかなタワーをイメージしています。高層階からはレインボーブリッジやお台場、富士山が一望でき、そしてエレベーターホールからも東京タワーや新宿副都心などの眺望が楽しめます。

また、一部御影石貼りを採用しており、メタリック感のあるアクセントをつけた外観となっています。

もちろん、セキュリティ面への配慮も充実。1階はエントランスや屋内駐輪場などの共用スペースを展開し、2階から住戸を配置しています。

エクサージュ海岸 アプローチ
エクサージュ海岸 アプローチ
エクサージュ海岸 エントランス
エクサージュ海岸 エントランス

エクサージュ海岸は、四方に植栽を施し周囲の視線をさえぎると共に、移ろう四季を色鮮やかに演出してくれます。

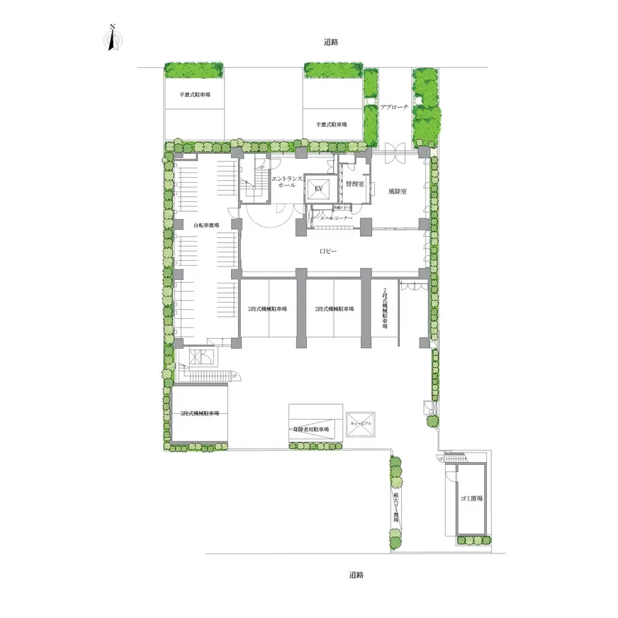
エクサージュ海岸 敷地配置図
エクサージュ海岸 敷地配置図

エントランスを抜けた先には、上質な御影石と一部大理石を用いたエントランスロビーが広がります。また、雨や風の日も外気にさらされずに快適に玄関まで向かうことができる、プライバシー性を高めた内廊下を配置。各フロアともにエレベーターホールを囲うよう住戸が配されており、外部からの視線がなく安心です。

建物構造

エクサージュ海岸 アプローチ
エクサージュ海岸 アプローチ

エクサージュ海岸は、「HRC-35工法」を採用しています。こちらは、高強度コンクリートと高強度太径鉄筋により耐震性能を向上させます。また、地上階はプランの自由度の高い純ラーメン構造を採用しています。

そして、建物の基礎は地面から30m以上深い、N値50以上とされる固結シルト層を支持層とする、場所打ちコンクリート杭(アースドリル工法)としています。杭の先端は地面から35m(一部31.5m)までの深さ。確実に支持層へ達する構造となっています。さらに、杭に使われるコンクリートの強度は、Fc27N/平方ミリメートル。地震などから建物を守り、耐久性も高レベルで確保しています。

防災設備

エクサージュ海岸は地震で玄関ドアが歪み脱出できなくなることを防ぐため、一定のすき間を持たせた対震枠を設定。扉は非塩ビ系素材の化粧鋼板で、万が一の火災でも有害ガスの発生を少なくします。

キッチンの吊り戸棚には、地震の揺れを感知すると扉が開かなくなる耐震ラッチを採用。収納物の飛び出しを抑えて、二次災害を防止します。

セキュリティ

エクサージュ海岸は、エントランスにオートロックを採用。来訪者があると各住戸のリビング・ダイニングルームに設置されたインターホン親機により、確認・解錠できるようになっています。管理は住友不動産建物サービス株式会社へ委託。管理スタッフが365日年中無休、9時から15時勤務。さらに、24時間オンライン体制でANS(全日警)のコントロールセンターに直結。緊急事態発生時にはパトロール員が急行します。

また、防犯性に優れたダブルロックとワンタッチ操作で扉の開閉が可能なプッシュプルハンドルの玄関ドアも採用しています。

そして、24時間・年中無休の「ハロー健康診断24」も設定。医師や保健師、看護師が健康、医療、看護、介護、メンタルヘルスの相談に応じ、わかりやすくアドバイスします。加えて、夜間や休日の医療機関などもお知らせ。フリーダイヤルでプライバシーも厳守するため安心です。

COMMON AREA 共用部

快適な暮らし心地の
ための価値を綴る

共用施設

エントランスホールのメールコーナーには、宅配ロッカーを設置しています。不在時でも荷物などを受け取ってくれ、DPEやクリーニングサービスも行います。

サービス

全住戸でインターネットが利用できるように、常時接続ワイヤレス方式のインターネットシステムを採用。また、スカイパーフェクトTV対応・2衛星対応の2同軸のBS・CSアンテナを設置しており、チューナーを用意すると、そのまま視聴できます(インターネット/BS・CS放送共に契約料・視聴料・工事費などは別途)

FLOOR PLAN 間取り図一例

すべての住戸が真南向きで
独立感のある角住戸で配置

エクサージュ海岸 間取り図例
エクサージュ海岸 間取り図例
エクサージュ海岸 間取り図例
エクサージュ海岸 間取り図例

INSIDE THE ROOM 室内

上質な居室スペースで
リラックスした
ベイライフを過ごす

エクサージュ海岸は居住スペースを、通風・採光に配慮しプライベート性を高める仕様をセレクトしています。細部への徹底した作り込みにより、心からリラックスできるベイライフを楽しめる、機能美あふれた設備・仕様を揃えています。

居室はすべて真南向きで角住戸。さらに、10階まで1フロア4戸、11回以上は1フロア2戸と限定し、プライバシーも高いレベルで守られています。

室内仕様

全室、廊下はフローリング仕上げ

アレルギーの元となるハウスダストの発生を抑えつつ、掃除しやすくて清潔さを維持できるフローリング床を採用しています。材質はJAS基準の低ホルムアルデヒドのF☆☆☆☆(エフフォースター)等級を取得しています。さらに、二重床構造のため遮音性にも優れます。

約2,500mmのゆとりの天井高

リビング・ダイニングルームと洋室の天井高は、ゆったりとくつろげる居室スペースの実現のため、天井高を約2,500mmに設定しています。

人造大理石のカウンタートップの
システムキッチン

上質で汚れがつきにくい、人造大理石のカウンタートップをもつシステムキッチンを採用。

キッチン

※画像はイメージです。

バリアフリー設計&ワイドスイッチ

廊下やリビング・ダイニングルーム、洋室、キッチン、洗面やトイレまで床面の段差の少ないフラットフロアで設計。また、照明スイッチは押しやすいワイドタイプをセレクトしています。

健康面に配慮した内装仕様

シックハウス症候群対策として、住戸内の壁や天井クロスにノンホルマリン接着剤を使用しています。

広々とした浴室

1.4m×1.8mのひとまわり大きな広々とした浴室により、毎日のバスタイムがより快適になります。また、キッチンとバスルームのリモコンは、簡単なボタン操作で給湯から湯温調節、お湯張り、追い焚き、足し湯をコントロールできます。

雨天や夜間でも便利な浴室換気乾燥機

浴室天井に雨天や夜間でも洗濯物などを乾燥でき、浴室内のカビの発生を抑える浴室換気乾燥機を設置。冬場には入湯前に浴室を暖めることも可能です。

ACCESS アクセス

「芝浦ふ頭」駅へ
徒歩4分、
「田町」駅へ
徒歩15分の好アクセス

エクサージュ海岸の最寄り駅は、「芝浦ふ頭」駅。徒歩4分と便利です。また、JR「田町」駅も徒歩圏で利用可能。さらに、海岸通りや首都高速1号羽田線、首都高速11号台場線が近くを通るため、車のアクセス性も良好です。

掲載の所要分数は日中平常時のもので、乗り換え・待ち時間等は含みません。
また時間帯により異なる場合があります。

鉄道

エクサージュ海岸の最寄り駅である、新交通ゆりかもめ「芝浦ふ頭」駅までは徒歩4分。そこから都心主要駅までのアクセスは良好です。

「芝浦ふ頭」駅
「芝浦ふ頭」駅

また、JR山手線、京浜東北線「田町」駅も徒歩15分で利用可能です。

「田町」駅
「田町」駅

最寄り駅の「芝浦ふ頭」駅からの主な駅への所要時間は以下の通りです。

  • 新橋駅
    新交通ゆりかもめ利用。所要時間は約8分です。
  • 銀座駅
    新交通ゆりかもめ利用。「新橋」駅で東京メトロ銀座線に乗り換え。所要時間は約20分です。
  • 渋谷駅
    新交通ゆりかもめ利用。「新橋」駅で東京メトロ銀座線に乗り換え。所要時間は約33分です。
  • 新宿駅
    新交通ゆりかもめ利用。「汐留」駅で都営大江戸線に乗り換え。所要時間は約34分です。
  • 霞ヶ関駅
    新交通ゆりかもめ利用。「新橋」駅で東京メトロ銀座線に乗り換え。「銀座」駅で東京メトロ日比谷線に乗り換え。所要時間は約30分です。

タクシー

タクシー

※画像はイメージです。

行き先 所要時間
「新橋」駅 約8分
「銀座」駅 約9分
「渋谷」駅 約13分
「新宿」駅 約20分
「霞ヶ関」駅 約11分

バス

バス
「芝浦埠頭」バス停

都営バス「芝浦埠頭」バス停へ徒歩3分。そこから「田町駅東口」バス停まで約8分、「品川駅港南口」バス停まで約14分です。

空港

空港

※画像はイメージです。

羽田空港へのルート

①電車

「芝浦ふ頭」駅から新交通ゆりかもめを利用。「新橋」駅で乗り換えてJR山手線で「浜松町駅」へ。東京モノレールへ乗り換えて「羽田空港第1ターミナル」駅まで移動。所要時間は約45分です。

②タクシー

所要時間は約19分です

成田空港へのルート

①電車

「芝浦ふ頭」駅から新交通ゆりかもめを利用。「新橋」駅で乗り換えて都営浅草線、京急押上線、京急成田空港線に直通で「成田空港」駅まで移動。京成特急スカイライナーに乗り換えて「成田空港」駅まで移動。所要時間は約1時間27分です。

②タクシー

所要時間は約52分です。

新幹線発着駅

「東京」駅へのアクセス

「芝浦ふ頭」駅から新交通ゆりかもめを利用。「新橋」駅で乗り換えてJR山手線で「東京駅」へ。所要時間は約23分です。

「品川」駅へのアクセス

「芝浦ふ頭」駅から新交通ゆりかもめを利用。「新橋」駅で乗り換えてJR山手線で「品川駅」へ。所要時間は約21分です。

LIFE
INFORMATION 周辺の施設・店舗情報

ベイエリアの華やかさと
暮らしやすさを持つ
ロケーション

エクサージュ海岸は、「芝浦ふ頭」駅まで徒歩4分と抜群の交通アクセスを持ち、また、「田町」駅も利用可。「田町」駅周辺では、ショッピングも楽しめます。ここでは、エクサージュ海岸の住人として日々の利便性や街の雰囲気をお伝えするため、商業施設や自然環境、公園、インフラ施設など生活に密着した情報をご紹介します。

商業施設、商店街

芝浦商店会(徒歩9分/約650m)

芝浦商店会
芝浦商店会

「運河のある街 芝浦商店会」を旗印に57年もの歴史を持つ、加盟店数が100店舗を超える商店会です。JR田町駅東口から広がり港区芝浦3、4丁目の広範囲にわたります。飲食店はもちろん、コンビニエンスストア、病院から屋形船まで様々な店舗や施設、サービスが集います。

msb Tamachi(徒歩13分/約1,000m)

msb Tamachi
msb Tamachi

「田町」駅東口からペデストリアンデッキで直結する、msb Tamachi(ムスブ田町)は、オフィス、店舗、ホテル、公共施設が一体となった街区です。スーパーやレストラン、カフェ、バー、ドラッグストア、病院など様々な店舗施設が入ります。

自然、公園

埠頭公園(徒歩3分/約180m)

埠頭公園
埠頭公園

1910年(明治43年)、白瀬中尉らが204tの木造船、海南丸で日本初の南極探検にこの地から出発。これを記念して開南丸のレリーフとペンギン像のある記念碑が建っています。また、付近は日本プロ野球発祥の地で、1920年(大正9年)に芝浦野球協会として日本最初のプロ野球が発足。これにちなみ園内に少年野球場があります。

芝浦南ふ頭公園(徒歩5分/約400m)

芝浦南ふ頭公園
芝浦南ふ頭公園

レインボーブリッジの下にあり、橋と東京湾を一望できる海上公園。夜景もきれいです。

暮らし、インフラ

御田八幡神社(徒歩23分/約1,800m)

御田八幡神社
御田八幡神社

709年(和銅2年)に神様をお祀りして、1300年を超える神社です。三田、高輪、芝浦、港南の氏神様として崇敬され、「釜鳴神事」という、全国でも数少ない神事が1月と5月の15日に行われます。

港区 芝浦江南地区総合支所(徒歩17分/約1,300m)

港区 芝浦江南地区総合支所
港区 芝浦江南地区総合支所

港区役所の総合支所で、みなとパーク芝浦の1階にあります。住民登録や戸籍に関する届出、都民税や国民健康保険、国民年金などの手続きや相談が可能です。

首都高速1号羽田線(徒歩3分/約190m)

首都高速1号羽田線
首都高速1号羽田線

浜崎橋ジャンクションで首都高速都心環状線と分岐、羽田で高速神奈川1号横羽線に接続する高速道路です。芝浦ジャンクションで首都高速11号台場線と、昭和島ジャンクションで首都高速湾岸分岐線と分岐します。浜崎橋ジャンクションから芝浦出入口までは1962年(昭和37年)12月に開通。歴史ある高速道路です。

首都高速11号台場線(徒歩3分/約200m)

首都高速11号台場線
首都高速11号台場線

首都高速1号羽田線の芝浦ジャンクションを起点に、レインボーブリッジで東京港第一航路を横断。有明ジャンクションで首都高速湾岸線に接続する延長5,000mの高速道路です。レインボーブリッジは全長798m、中央径間570m、主塔の高さ126m、航路巾500m、航路中央の高さ50mを確保した2層構造の橋で、上層に首都高速道路、下層には臨港道路・遊歩道と新交通システムゆりかもめが通ります。

海岸通り(徒歩3分/約190m)

海岸通り
海岸通り

海岸通りは、港区東新橋1丁目の昭和通りから、環七通りの先、大田区平和島6丁目に至る、国道357号、都道316号、都道317号の該当区間の通称です。

幼稚園、保育園、学校

港区立芝浦アイランドこども園(徒歩5分/約350m)

港区立芝浦アイランドこども園
港区立芝浦アイランドこども園

港区立芝浦幼稚園(徒歩14分/約1,100m)

港区立芝浦幼稚園
港区立芝浦幼稚園

港区立芝浦小学校(徒歩14分/約1,100m)

港区立芝浦小学校
港区立芝浦小学校

港区立港南中学校(徒歩17分/約1,300m)

港区立港南中学校
港区立港南中学校

イベント、お祭り

芝浦まつり

芝浦まつりは、御田八幡神社の祭礼に端を発し、芝浦商店会、芝浦3、4丁目町会らが共催する夏のお祭りです。例年は芝浦3丁目なぎさ通りを会場に、舞台やお祭り広場を設置。カラオケ大会や盆踊りなどを楽しみます。

まとめ

ベイエリアの華やかさと
暮らしやすさを併せ持つ

エクサージュ海岸のある芝浦・竹芝エリアは、ベイエリアの中心的存在になっています。周辺には汐留、銀座、品川などビジネスやショッピングに便利な街が広がり、アクセスも良好。港区という好立地により華やかでいて暮らしやすさも併せ持ちます。

エクサージュ海岸は10階までを基壇部とする特徴的なタワーデザインで、一部御影石貼りを採用しメタリック感のあるアクセントをつけた外観を持ちます。また、10階までは1フロア4戸、11階以上は1フロア2戸に限定するため、全住戸が真南向きかつ角住戸となっており、さらに、リビング・ダイニングルームと洋室の天井高を約2,500mmと設定し、通風・採光に配慮した仕様になっています。

「芝浦ふ頭」駅まで徒歩4分、「田町」駅へ徒歩15分と交通アクセスも良好。高層階からはレインボーブリッジ、お台場、富士山を一望するパノラマビューを楽しめます。

エクサージュ海岸

駅徒歩 不動産の表示に関する公正競争規約の改正(2022年9月1日)により、交通利便情報が販売中のものと異なる場合がございます。

ゆりかもめ
「芝浦ふ頭」駅 徒歩4分

築年月

2002年3月

総戸数

56戸

階数

地上20階 地下1階